中国石油上海大厦

上海写字楼出租 >  浦东写字楼出租 >  塘桥/浦电路写字楼出租 >  中国石油上海大厦出租
竹园商贸区中国石油上海大厦写字楼租金-办公楼外立面
竹园商贸区中国石油上海大厦写字楼租金-办公楼大堂
竹园商贸区中国石油上海大厦写字楼租金-办公楼电梯间
竹园商贸区中国石油上海大厦写字楼租金-办公楼露台
竹园商贸区中国石油上海大厦写字楼租金-办公楼配套1
竹园商贸区中国石油上海大厦写字楼租金-办公楼配套2
竹园商贸区中国石油上海大厦写字楼租金-办公楼配套3
竹园商贸区中国石油上海大厦写字楼租金-办公楼配套4
竹园商贸区中国石油上海大厦写字楼租金-办公楼员工食堂
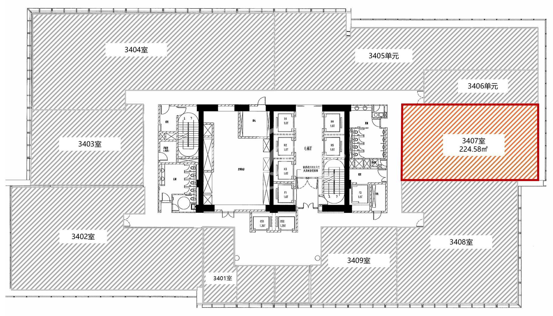
竹园商贸区中国石油上海大厦写字楼租金-办公楼平面图

0 - 0元/㎡/天

  • 0
    房源数量
  • 0-0
    可租面积
  • 近期 32 位用户关注
  • 世纪大道1200号
  • 地铁4号线浦电路站站300米 地铁2号线世纪大道站站570米 地铁6号线世纪大道站站570米
    写字楼租赁物业招商黄先生
    黄青 Green
    微信一键扫码拨号 18917328282
    办公室租赁物业招商黄先生

中国石油上海大厦 在租办公室房源

  • 全部可租 0
93office 上海写字楼出租

您来晚了,此楼盘房源已租罄
点击返回查看其他的楼盘,或直接委托我们帮您找房

写字楼租金行情

  • 中国石油上海大厦
    写字楼租金均价

    0元/㎡/天

  • 塘桥/浦电路商圈
    写字楼租金均价

    3.8元/㎡/天

  • 浦东区
    写字楼租金均价

    3.8元/㎡/天

中国石油上海大厦概况

  • 竣工年份 2013 年
  • 总楼层 40 层
  • 标准层面积 2377 平方米
  • 得房率 70 %
  • 空调 中央空调(工作时间)
  • 净高 2.7 米
  • 物业管理费 32 元/㎡/月
  • 交房标准 架空地板,墙面涂料,铝扣板吸顶灯

中国石油上海大厦简介

上海浦东新区写字楼出租/办公楼租赁

浦东世纪大道核心区|中国石油央企总部|毗邻地铁2/4/6/9号线四条轨交|大厦配备机房及柴发,适合金融类企业|特殊楼层挑空8米.


项目位于浦东世纪大道核心区,快速直达陆家嘴核心商务区和浦东竹园金融“三中心”。


以上93office(www.93office.com)办公楼租赁信息是否帮助到您,若想了解更多,请关注徐汇区写字楼出租专区。

中国石油上海大厦 

0 - 0元/㎡/天
咨询顾问
办公室租赁物业招商黄先生 微信一键扫码拨号 18917328282
写字楼租赁物业招商黄先生
黄青 Green
预约看房
  • 上海写字楼
  • 区域写字楼
  • 商圈写字楼
  • 热门写字楼
  • 热门创意园
  • 热门联合办公
+ 查看更多
+ 查看更多